À Vendre

749 900 $

1447 Boul. Maisonneuve , Saint-Jérôme, QC J5L1Y6

Isolé 4 Chambres à coucher 1 Salles de bain 1 Salle de bains partielle

Remarques

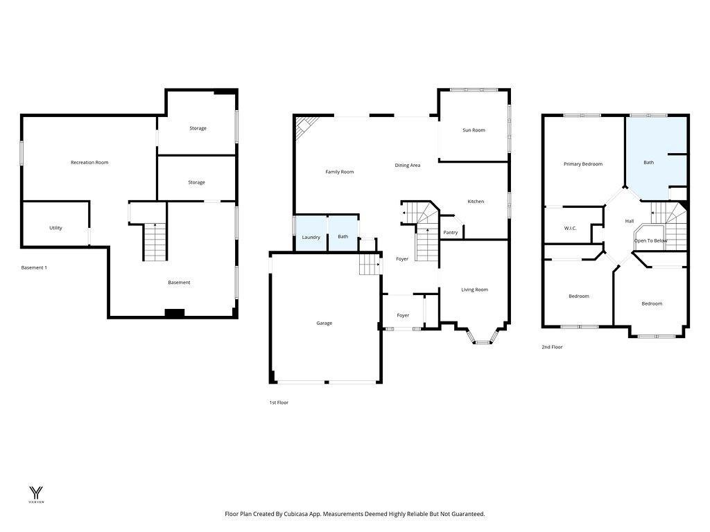
Située directement en face du Parc du Lac Claude, cette propriété impeccable offre un cadre de vie recherché alliant tranquillité et accessibilité. Vestibule fermé avec portes doubles menant à un hall d'entrée spacieux et lumineux et à des aires de vie conviviales. 4 chambres, dont une au rez-de-chaussée, solarium quatre saisons intégré, garage double chauffé. Sous-sol à hauts plafonds avec plomberie en place pour une future salle de bain. Chauffage au gaz naturel. Emplacement stratégique près des écoles, services, commerces et de l'UQO.

Superficie habitable approximative : ±1 808 pi², selon le plan d'étage disponible (excluant le sous-sol et le garage). Les dimensions seront à confirmer au certificat de localisation.

Le solarium est chauffé, utilisable à l'année et est intégré à l'espace habitable. Le solarium constitue un agrandissement reposant sur une fondation de béton coulé, avec espace de sous-sol additionnel sous celui-ci.

Le rez-de-chaussée offre une aire de vie à concept ouvert, favorisant une circulation fluide entre les principales pièces.

L'aménagement paysager est complété.

La propriété comprend quatre chambres à coucher, toutes situées hors sous-sol.





Inclusions : 

Cuisinière, frigo, lave-vaisselle, laveuse, secheuse, stores, tringles, rideaux, plafonniers.

Exclusions : 

Bureau dans la 3e chambre a coucher au 2e étage, étagères dans la salle de couture au sous-sol, Système de sécurité Telus, incluant caméras, serrure intelligente, détecteurs et contrat de surveillance, sauf entente contraire.

Résumé de la propriété

  • Voisinage : Bellefeuille
  • Style de bâtiment : Isolé
  • Évaluation du terrain : 153 000,00 $
  • Évaluation de l'immeuble : 566 400,00 $
  • Évaluation totale : 719 400,00 $
  • Année d'évaluation : 2026
  • Taxes municipales : 5 309,00 $
  • Taxe scolaire : 465,00 $
  • Taxes annuelles totales : 5 774,00 $ (2026)
  • Largeur du terrain en façade : 18.6 Mètre
  • Profondeur du terrain : 34.6 Mètre
  • Dimensions du terrain : 6307 Pieds carrés
  • Largeur du bâtiment 12.4 Mètre
  • Profondeur du bâtiment 14.7 Mètre
  • Nbre d'espaces de stationnement : 4
  • Superficie habitable (approx): 1800 Pieds carrés
  • Bâti en : 2010
  • Chambres : 4
  • Salle(s) de bains (complète(s)) : 1
  • Salle(s) de bains partielle(s) : 1
  • Zonage : Residential

Caractéristiques du bâtiment :

  • Sous-sol:
    6 pieds et plus , Partiellement aménagé
  • Bathroom Features:
    Douche indépendante
  • Murs mitoyens:
    Isolé (détaché)
  • Refroidissement:
    Climatiseur central
  • Clôture:
    Clôturé
  • Caractéristiques du foyer:
    Foyer au gaz
  • Type de fondations:
    Béton coulé
  • Chauffage:
    Gaz naturel
  • Caractéristiques de la buanderie:
    Salle d'eau , 1er niveau/RDC
  • Étages:
    À étages
  • Caractéristiques du terrain:
    Autoroute , Garderie/CPE , Golf , Hôpital , Parc , Piste cyclable , École primaire , École secondaire , Ski de fond , Transport en commun , Université , Plat
  • Autres équipements:
    Échangeur d'air
  • Parking Features:
    Asphalte , Attaché , Attenant , Chauffé , Double largeur ou plus
  • Toiture:
    Bardeaux d'asphalte
  • Égout:
    Municipalité
  • Services publics:
    Eau raccordée , Gaz naturel raccordé , Égout raccordé
  • Vue:
    Autre
  • Source d'eau:
    Municipalité
  • Caractéristiques des fenêtres:
    PVC , Manivelle (battant)

Pièces

  • Hall d'entrée/Vestibule:
    Niveau : Rez-de-chaussée 1.60 m x 2.01 m
    Plancher : Céramique
  • Autre:
    Niveau : Rez-de-chaussée 3.91 m x 2.46 m
    Plancher : Bois
  • Salon:
    Niveau : Rez-de-chaussée 4.75 m x 4.09 m
    Plancher : Bois
  • Salle à dîner:
    Niveau : Rez-de-chaussée 4.01 m x 2.90 m
    Plancher : Bois
  • Solarium:
    Niveau : Rez-de-chaussée 3.40 m x 3.33 m
    Plancher : Bois
  • Cuisine:
    Niveau : Rez-de-chaussée 3.73 m x 3.40 m
    Plancher : Céramique
  • Autre:
    Niveau : Rez-de-chaussée 4.93 m x 3.33 m
    Plancher : Bois
  • Salle d'eau:
    Niveau : Rez-de-chaussée 3.56 m x 2.95 m
    Plancher : Céramique
  • Autre:
    Niveau : 2e niveau 3.53 m x 2.18 m
    Plancher : Bois
  • Chambre principale:
    Niveau : 2e niveau 4.37 m x 3.91 m
    Plancher : Bois
    Walk-in
  • Chambre:
    Niveau : 2e niveau 4.50 m x 3.58 m
    Plancher : Bois
  • Chambre:
    Niveau : 2e niveau 3.96 m x 3.56 m
    Plancher : Bois
  • Salle de bains:
    Niveau : 2e niveau 4.09 m x 3.00 m
    Plancher : Céramique
  • Penderie (Walk-in):
    Niveau : 2e niveau 1.73 m x 2.84 m
    Plancher : Bois
  • Chambre de famille:
    Niveau : Sous-sol 4.09 m x 6.53 m
    Plancher : Béton
  • Rangement:
    Niveau : Sous-sol 3.10 m x 3.78 m
    Plancher : Béton
  • Rangement:
    Niveau : Sous-sol 2.16 m x 3.78 m
    Plancher : Béton
  • Autre:
    Niveau : Sous-sol 2.36 m x 3.17 m
    Plancher : Béton
  • Atelier:
    Niveau : Sous-sol 5.69 m x 7.11 m
    Plancher : Béton

Unités à revenue

  • Pièces : 17 Nombre de chambres : 4 Nombre salles de bain : 2 Revenu mensuel potentiel : 0,00 $
Style de vie
Information du quartier
Agent

Pétra Demers

Courtier immobilier agréé

Petra Demers Inc.

Téléphone : 450.672.0321

Cellulaire : 514.791.4829

Obtenir plus de renseignements